389 .000 €
PRESTIGIOSI APPARTAMENTI QUADRILOCALI DI NUOVA COSTRUZIONE
Via di Casal Morena 108
, Roma
Superficie: 130 mq
Abitabile: 86 mq
In Vendita

Roma – Casal Morena, Via di Casal Morena 108. In un contesto tranquillo e riservato ma perfettamente collegato ai principali servizi, nasce un esclusivo complesso residenziale composto da sole 6 unità abitative.

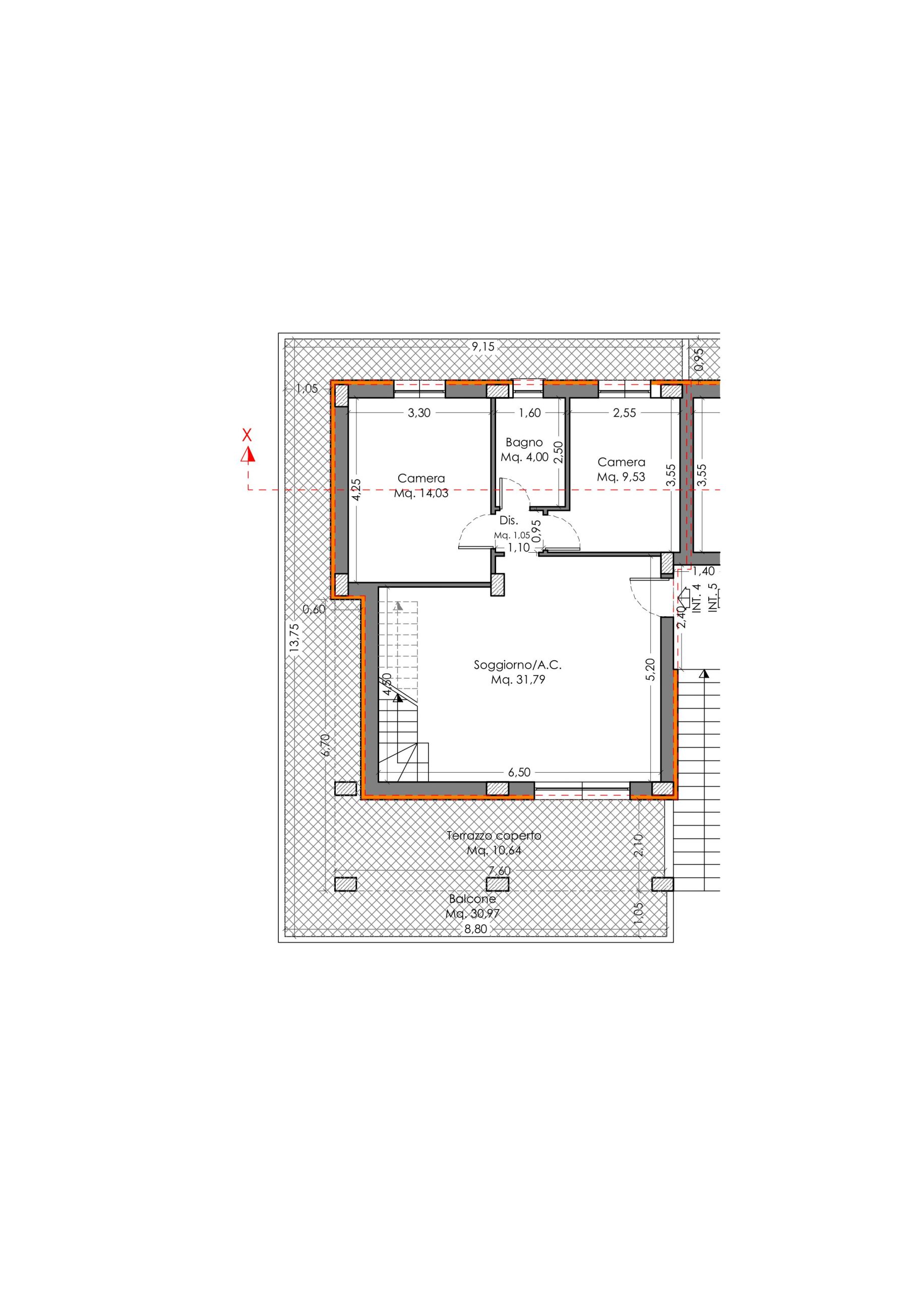
Sono disponibili al primo piano 3 ampi appartamenti quadrilocali disposti su due livelli.

Ogni soluzione offre un luminoso e spazioso salone di oltre 30 mq con angolo cottura e accesso diretto a un terrazzo vivibile, disimpegno, camera matrimoniale, cameretta e bagno.

Al piano secondo ed ultimo si trova una camera con cabina armadio, un secondo bagno e un ampio e suggestivo terrazzo che circonda l’abitazione su tutti i lati.

DOTAZIONI:
• Tecnologie ad alta efficienza energetica
• Contesto esclusivo e riservato
• Spazi interni ed esterni ampi e ben distribuiti
• Finiture di pregio personalizzabili
• Posti auto privati

Una soluzione ideale per chi desidera una casa di nuova costruzione, funzionale e accogliente, in una zona tranquilla senza rinunciare alla comodità dei servizi.

Prezzi a partire da € 389.000.
Consegna prevista: settembre 2027.

Specifiche
Camere da letto:
3
Bagni:
2
Totale camere:
4
Cucina:
angolo cottura
Piano:
1
Piani immobile:
2
Piani edificio:
2
Arredamento:
non arredato
Box auto:
nessuno
Posto auto:
scoperto
Stato immobile:
Nuova costruzione
Anno di costruzione:
2026
Categoria catastale:
a2
Classe energetica:
a4
Caratteristiche
Giardino:
Terrazzo:
si
Balcone:
no
Taverna:
no
Cantina:
no
Mansarda:
no
Portineria:
Nessuno
Infissi esterni:
Doppio vetro / pvc
Affaccio:
interno
Riscaldamento:
autonomo
, pavimento
Posizione
Address: Via di Casal Morena 108
Planimetrie
mq
1 Camere
1 Bagni
mq
1 Camere
1 Bagni
mq
1 Camere
1 Bagni
mq
1 Camere
1 Bagni
mq
1 Camere
1 Bagni
mq
1 Camere
1 Bagni

Agenzia immobiliare

Contattaci per maggiori info:
Calcola il tuo mutuo
Anticipo
0.00
 €
Mutuo
0.00
 €
0.00
 €

Immobili simili

giardino1
Via di Casal Morena 108
, Roma
325 .000 €
image00002
Via Luigi Bleriot 49/G
, Ciampino
400 .000 €
image00007
Via Pierluigi da Palestrina 1
, Ciampino
289 .000 €

Non trovi quello che stai cercando?

Compila il modulo e ricevi annunci su misura per te!

Preferenze immobile
n° di bagni
n° di camere da letto
altre camere/stanze
Totale camere/stanze
0.00
Budget massimo (€)
Zona dell'immobile
Scegli una o più zone preferite
Tipologia dell'immobile
Scegli una o più tipologie preferite
Nome e cognome *
Email *
Telefono *
Preferisci essere contattato

Richiedi un appuntamento

Il tuo nome e cognome *
La tua email *
Il tuo numero di telefono *
In che orario pfererisci essere contattato?
Il tuo messaggio (facoltativo)

Ricevi una notifica per annunci simili a questo

Modifica le tue preferenze

Preferenza bagni
Preferenza camere da letto
Preferenza camere/stanze
Totale camere/stanze
0.00
Zona preferita
Tipologia preferita
principale
secondaria
Nome e cognome
Email
Telefono
Preferenze contatto